История этого проекта началась с привычного запроса: реконструкция старого дома. Однако, глубокий анализ технического задания и пожеланий заказчиков открыл перед нами гораздо большую перспективу. Стало очевидно: чтобы воплотить истинную мечту, необходимо выйти за рамки существующих конструкций. Было принято решение – демонтировать старые постройки и спроектировать дом совершенно нового уровня, отвечающий всем современным стандартам комфорта, функциональности и эстетики.
Одноэтажный дом, спроектированный в стиле Райта, площадью 134 м² с прямыми линиями и функциональной эстетикой. В отделке фасадов использовано гармоничное сочетание светлых и темных материалов, подчеркивающее объем и графичность форм. Вытянутые высокие окна, визуально акцентированные темными вставками, характерная скатная кровля с массивными и глубокими свесами. Внутри каждый квадратный метр продуман. Просторная кухня-гостиная становится сердцем дома, местом для семьи с удобным выходом на террасу и задний двор – идеальное продолжение жилого пространства. Помимо этого, здесь расположились три уютные спальные комнаты, два современных санузла, функциональная котельная и вместительная гардеробная – все, что необходимо для полноценной и комфортной жизни современной семьи.
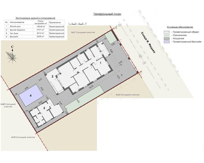
В единой архитектурной концепции с основным домом выполнена и просторная беседка площадью 42 м² с парилкой, комнатой отдыха и санузлом, терраса с мангалом. В беседке предусмотрели подвальное помещение для размещения оборудование бассейна.
Территория участка также стала частью единого дизайнерского замысла. Предусмотрено удобное место для парковки автомобилей, современный бассейн, продуманное озеленение, создающее атмосферу уюта, а также стильный забор, гармонично продолжающий архитектурную тему дома.
В итоге, был создан не просто дом, а целостный архитектурный ансамбль, место, где мечта о идеальной жизни становится реальностью.